Complex

WB79

Aan de markante Westblaak in het centrum van Rotterdam ligt WB79: een hoogwaardig wooncomplex waarin een voormalig kantoorgebouw is getransformeerd tot eigentijdse woningen. Het pand is herontwikkeld naar ontwerp van Eentien Architecten, met behoud van de karakteristieke wederopbouwarchitectuur.

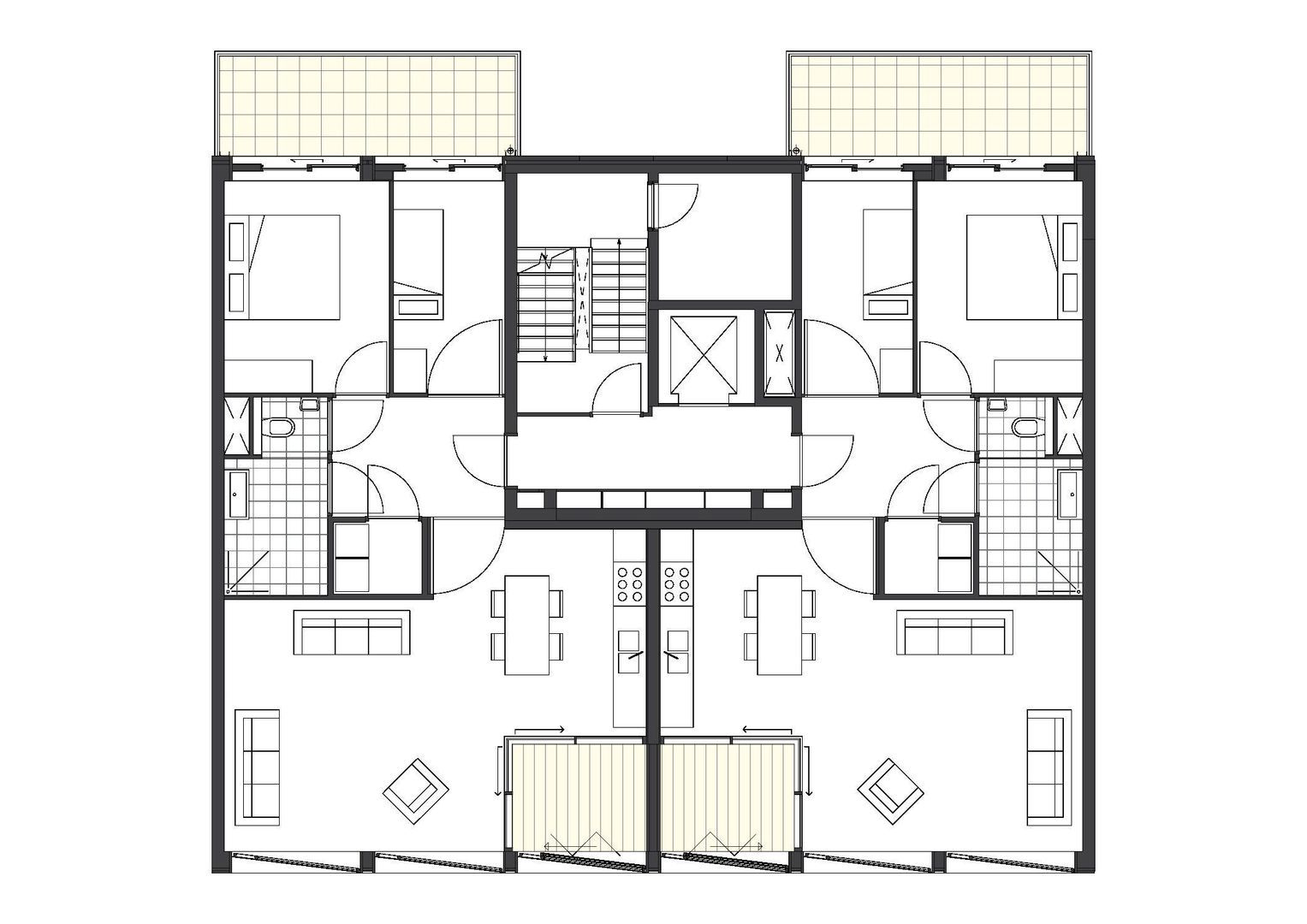
Het complex bestaat uit 13 woningen met een commerciële plint. De gevelstructuur met natuurstenen elementen is behouden en versterkt, terwijl het gebouw volledig is vernieuwd voor modern gebruik. De woningen zijn hoogwaardig en duurzaam afgewerkt en beschikken over A+ energielabels, wat zorgt voor comfortabel en energiezuinig wonen.

Alle woningen beschikken over ruime bergruimte en in het gebouw is een gezamenlijke fietsenberging aanwezig. De appartementen zijn efficiënt ingedeeld en voorzien van loggia’s en balkons.

Op de bovenste verdieping is een penthouse gerealiseerd met uitzicht over de stad. Dankzij de centrale ligging bevinden voorzieningen en openbaar vervoer zich op loopafstand. WB79 staat voor duurzaam en hoogwaardig stedelijk wonen midden in Rotterdam.

Foto's

Westblaak, Rotterdam foto-0
Westblaak, Rotterdam foto-1
Westblaak, Rotterdam foto-2
Westblaak, Rotterdam foto-3
Westblaak, Rotterdam foto-4
Westblaak, Rotterdam foto-5
Westblaak, Rotterdam foto-6
[ { "address": "Westblaak", "zipCode": "3012 KE", "city": "Rotterdam", "lat": "51.917308", "lng": "4.477103" } ]
Bekijk kaart
[ { "featureType": "landscape", "elementType": "labels", "stylers": [ { "visibility": "off" } ] }, { "featureType": "transit", "elementType": "labels", "stylers": [ { "visibility": "off" } ] }, { "featureType": "poi", "elementType": "labels", "stylers": [ { "visibility": "off" } ] }, { "featureType": "water", "elementType": "labels", "stylers": [ { "visibility": "off" } ] }, { "featureType": "road", "elementType": "labels.icon", "stylers": [ { "visibility": "off" } ] }, { "stylers": [ { "hue": "#00aaff" }, { "saturation": -100 }, { "gamma": 2.15 }, { "lightness": 12 } ] }, { "featureType": "road", "elementType": "labels.text.fill", "stylers": [ { "visibility": "on" }, { "lightness": 0 } ] }, { "featureType": "road", "elementType": "geometry", "stylers": [ { "lightness": 57 } ] }, { "featureType": "poi.park", "elementType": "geometry", "stylers": [ { "color": "#deecdb" } ] }, { "featureType": "water", "elementType": "all", "stylers": [ { "visibility": "on" }, { "color": "#e0f1f9" } ] } ]

Op zoek naar jouw perfecte huurwoning of bedrijfsruimte?

Maak direct een gratis zoekprofiel aan om als eerste ons nieuwe aanbod te ontvangen en ontdek welke buurt het beste bij jou past met onze buurtwijzer.